Διαμέρισμα προς πώληση Γλυφάδα 129 τ.μ
Γλυφάδα, Αθήνα - Νότια Προάστια€ 807.000
- Εμβαδόν:129 τ.μ
- Δωμάτια:3
- Όροφος:2 ος
- Επίπεδα:2
- Έτος Κατασκευής:2024
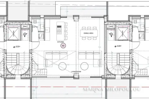
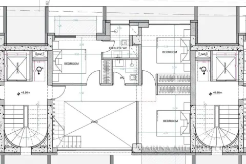
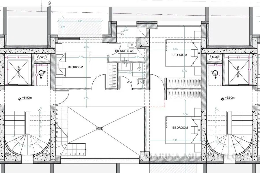
ΓΛΥΦΑΔΑ 'Ανω (λίγο κάτω από την Λ. Γούναρη) σε κτίριο υπό κατασκευή, Μεζονέτα 2ου-3ου (τύπου Loft), 129 τμ, μεσαίο διαμέρισμα με Δυτικό - Ανατολικό προσανατολισμό. - 2ος, 59 τμ, ενιαίος χώρος υποδοχής διπλού ύψους - τραπεζαρία, ενιαία κουζίνα, 1 wc και 2 βεράντες. - 3ος (Loft), 70 τμ, 3 υ/δ (1 master) και 1 επιπλέον μπάνιο. Αποτελεί μέρος σύγχρονου 5όροφου γωνιακού κτιρίου με συνολικά 12 ιδιοκτησίες. Διαθέτει κλιματισμό, ενδοδαπέδια, ενεργειακά τζάμια θερμοδιακοπής, υβριδικά ηλιακά panels για ζεστό νερό, υπόγεια θέση στάθμευσης και αποθήκη. Τιμή ζώνης 2350€. Βρίσκεται πολύ κοντά σε τοπική αγορά, 2,2 χλμ από το μετρό Ελληνικού και τον εμπορικό ιστό της Γλυφάδας, 3 χλμ από την παραλία της Γλυφάδας, 3,5 χλμ από το Μητροπολιτικό Πάρκο Ελληνικού και 26 χλμ από το αεροδρόμιο. Εκτιμώμενη παράδοση Δεκέμβριο του έτους 2026.
- Θέση στάθμευσηςΚλειστή
- ΘέρμανσηAir-condition
- ΚατάστασηΥπο κατασκευή
- ΠροσανατολισμόςΑνατολικός, Δυτικός
- ΘέσηΔιαμπερές
- WC
- Αποθήκη
- Ασανσέρ
- Διπλά τζάμια
- Ηλιακό θερμοσίφωνα
- Μπάνιo
Είστε κτηματομεσίτης;
Δείτε πως μπορούμε να σας βοηθήσουμε να βελτιώσετε τον τρόπο διαχείρησης του γραφείου σας.Κατάλαβα









