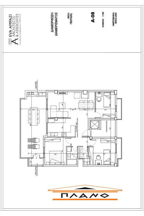
Διαμέρισμα προς πώληση Κέντρο Πειραιά 92 τ.μ
Κέντρο Πειραιά, Πειραιάς€ 250.000 ⇩ € 24.000 στις 06/10/2024
- Εμβαδόν:92 τ.μ
- Δωμάτια:2
- Όροφος:5 ος
- Έτος Κατασκευής:1973
- Έτος Ανακαίνισης:2012
Πειραιάς, ανακαινισμένο ρετιρέ 92τμ, 5ου ορόφου, προσόψεως, τεράστια βεράντα 30τμ, με θέα σε πάρκο, 2 υπνοδωμάτια (με δυνατότητα 3ου), σαλόνι, κουζίνα με χώρο καθημερινής τραπεζαρίας, μπάνιο, ανεξάρτητη θέρμανση με ατομικό λέβητα φυσικού αερίου, κουφώματα αλουμινίου με διπλά τζάμια και σίτες, τιμή 250000€
- ΔιαθεσιμότηταΜισθωμένο
- ΘέρμανσηΑυτόνομη Πετρελαίου, Κεντρική Φυσικού αερίου
- ΘέαΑπεριόριστη
- ΚατάστασηΑνακαινισμένο
- ΚουφώματαΑλουμινίου
- ΘέσηΠροσόψεως
- Ασανσέρ
- Βεράντα
- Διπλά τζάμια
- Μπάνιo
- Πόρτα ασφαλείας
- Σίτες
Είστε κτηματομεσίτης;
Δείτε πως μπορούμε να σας βοηθήσουμε να βελτιώσετε τον τρόπο διαχείρησης του γραφείου σας.Με τη χρήση αυτού του ιστότοπου, αποδέχεστε τη χρήση των cookies. Περισσότερες λεπτομέρειες
Κατάλαβα
Κατάλαβα

















